Resumo
Planta
Custos
Materiais
- Base 1 (4 x3,2 m = 12,8m²)
- Estrutura - Conforme Protótipo-8.png, vigas 48x172 madeira tipo C24 a cada 400mm para suportar vão de até 3,5m
- Transversais 11 vigas de 3,2m = 11xR1320
- Longitudinais 2 vigas de 4m = 2xR280
- Insulação e membranas
- Tyvek 13,5m² = R$150
- Fechamentos
- Acabamento
- Piso vinílico cada 4m² 3xR900
- Argamassa
- Adesivo
- Primer
- Rodapé (18m) = cada 2,4m 7xR560
- Estrutura - Conforme Protótipo-8.png, vigas 48x172 madeira tipo C24 a cada 400mm para suportar vão de até 3,5m
- Parede 2 (4x2,4 = 9,6m²)
- Estrutura sem aberturas (a cada 40cm)
- Base e top 3x4m
- Verticais 11x3m = 11xR250
- Insulação e membranas
- Lã de PET R$140 para 15m²
- . Tyvek 13,5m² = R$150
- Fechamentos
- 3 placa OSB 11mm 3xR630
- Acabamentos
- Estrutura sem aberturas (a cada 40cm)
- Tipo de madeira
- Cambará (Vochysia Guianensis) é C40, então pode-se utilizar o tamanho comercial 5x15cm
- Perobinha C40 também
Mão de obra
Expectativas
- Verificar tempo de construção, desperdícios e previsão (contrabilidade)
- Custo total
- A mão de obra latina é realmente barata?
- Aprimoramentos
- Transportabilidade
- Realmente vale a pena ser transportável?
- Melhor montar no local?
- Usabilidade
- Retorno financeiro
- Se custou R 600 é um sucesso?
- Realmente construir rápido é uma vantagem?
Planta e inspiração




Fundação

Chão

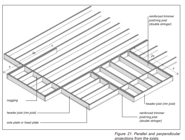
Vigas

- Joist spacing 600mm or 400mm

Diferentes níveis
Uso em banheiros ou áreas molhadas
Aberturas

Extensões

- Recomenda-se: vigas de 220mm de altura com espaçamento de 600mm, pode-se extender apenas 1500mm
Paredes
Tipos de Parede

Partes

Pilares

- Recomenda-se distanciamento de 400mm ou 600mm entre ‘studs’
- Áreas molhadas espaçamento de 300mm ou 400mm
Aberturas

Composição

Isolantes
Barreiras de vapor e ar
- Fibra de vidro parece ser a mais utilizada mas não é tão boa em isolamento acustico
- Lã de rocha parece ser pesada
- Lã de PET: densidade 350g por metro linear 5cm espessura, 7kg/m³, 15m² pesa cerca de 11kg
- Espuma de poliuretano seria o ideal para evitar desperdícios e a melhor para um produção em linha
Vapor
Humidade do ar em contato com uma superfície mais fria condensa. Assim como acontece na cokinha zero, o mesmo pode acontecer na parede da casa. Essa parede é de madeira e mofo pode aparecer
A barreira não é uma barreira, é um retardador. Quando a humidade tenta ir para a região que irá causar a condensação, ela retarda esse movimento.

https://www.youtube.com/watch?v=TfrsbcOCTD4
Fachada
https://www.youtube.com/watch?v=Vpeq3lUCEiU

Deformações
Estrutras de madeira sofrem deformações ao longo do tempo devido ao encolhimento devido a secagem da madeira e forças da construção.
São mais crítiacas nos anderes intermediarios

Outros
Escadas

Checklist
